
WINE EXHIBITION
This experiential space that serves as a wine museum and wine store celebrates wine as more than a beverage—it’s a cultural emblem and economic powerhouse. In partnership with Florence and Chianti Classico, we invite visitors to explore wine’s diverse roles beyond the glass, connecting tradition with modernity through interactive exhibitions and installations.
This project honors the impact of wine on heritage, community, and innovation, offering an immersive journey into its enduring significance.
The initiative for Chianti Classico, provides a prestigious space at San Niccolò—a former gate within Florence’s historic defensive walls, highlighting significant support for the Chianti Classico industry, which generates an impressive €1.9 billion in revenue, underscoring the importance of the wine sector to both the regional economy and the global market.
DETAILING GALLERY








SKETCHES & CAD DRAWINGS









Ground Floor
Functions: Open walk in sampling bar


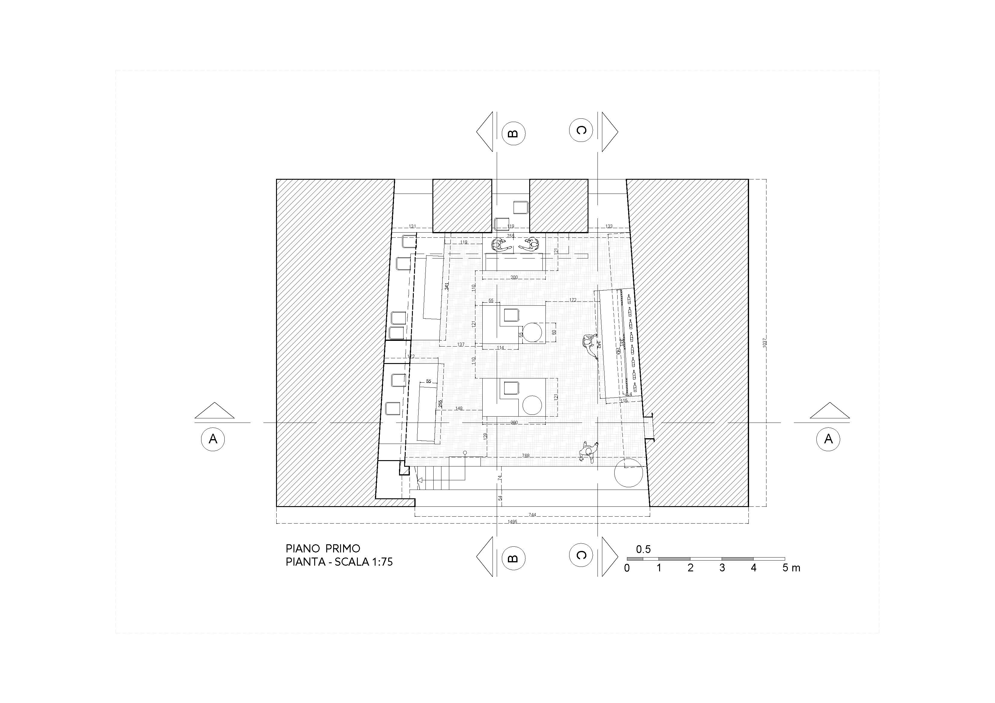
first Floor
Functions: Open walk in sampling bar


second Floor
Functions: Open walk in sampling bar


third Floor
Functions: Open bar & lounge


Leave a comment